关于年产500万斤传统工艺木榨油基地提升项目规划及建筑设计调整方案的批前公示
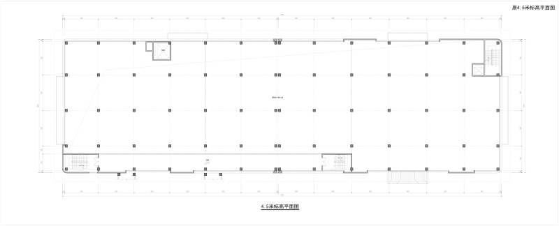
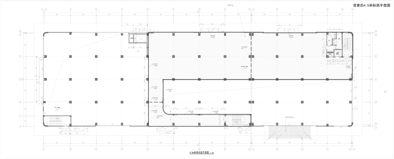
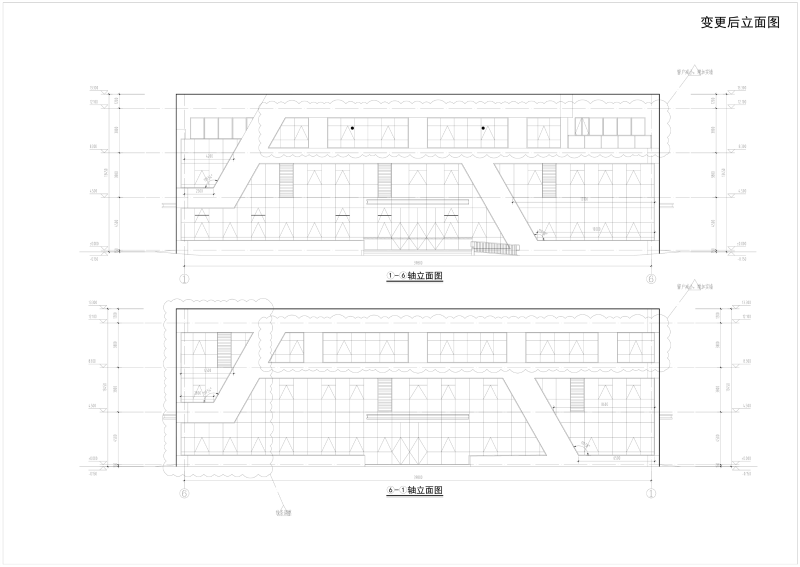
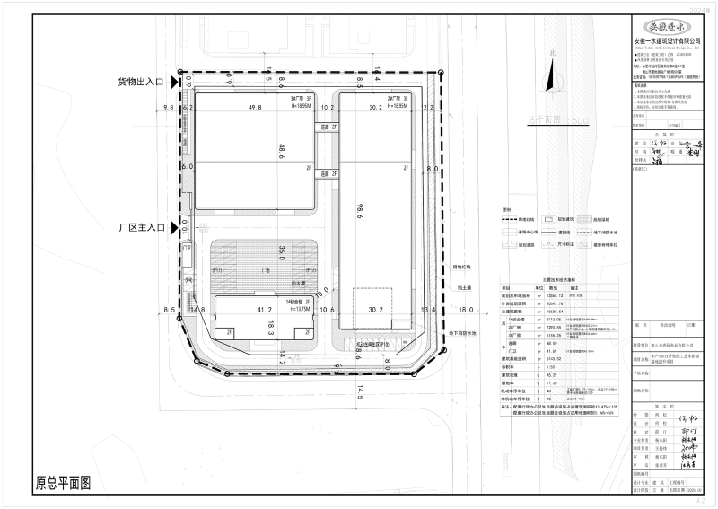
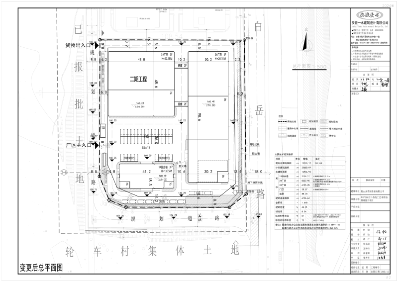
年产500万斤传统工艺木榨油基地提升项目位于休宁经济开发区绿色食品产业园区,项目业主为黄山余香园食品有限公司。项目用地面积13565.12平方米,调整前总建筑面积15688.54平方米,其中计容面积20347.70平方米,容积率为1.50。现建设单位向我局提交规划设计方案调整申请,调整后总建筑面积16966.94平方米,其中计容面积20680.40平方米,容积率为1.518。(详见附图)。具体变更内容如下:
1、1#、2#厂房外立面调整;
2、2#厂房一层增加夹层,增加建筑面积1260.40平方米;
3、门卫室位置由南侧调整至北侧,面积由41.69平方米调整为38.57平方米;
4、停车位位置调整并增加三个停车位,由48个调整为51个。
经审核,原则同意申报的方案。根据有关规定,现履行批前公示程序。
一、公示时间
7个工作日(2025年12月18日-2025年12月26日)
二、公示方式
1.公示地点:年产500万斤传统工艺木榨油基地提升项目现场;休宁县自然资源和规划局4楼公告栏。
2.公示网站:①休宁县人民政府/政府信息公开/部门乡镇平台链接/区县部门/休宁县自然资源和规划局(https://www.xiuning.gov.cn/zwgk/public/6616428/11962213.html)。
三、反馈方式
公示期间若有意见或建议请以书面、电话等方式反馈至休宁县自然资源和规划局行政审批服务股,书面意见请注明联系人姓名、电话、地址,反馈意见的单位应加盖单位公章。
在此公示期内,与该行政许可事项有直接重大利益关系的申请人、利益关系人依法享有陈述、申辩等权利。符合以上要求的当事人可在公示期内以书面法定形式向我局陈述、申辩等;逾期未提出陈述、申辩等要求的,视为放弃上述权利。
书面反馈地址:安徽省黄山市休宁县政务服务中心2楼210室(休宁县自然资源和规划局行政审批服务股)
邮编:245400
联系人:汪峻峰
联系电话:0559-7512923
休宁县自然资源和规划局
2025年12月18日






皖公网安备 34102202000191号
不良信息举报